Amstelveen, NL

Before.

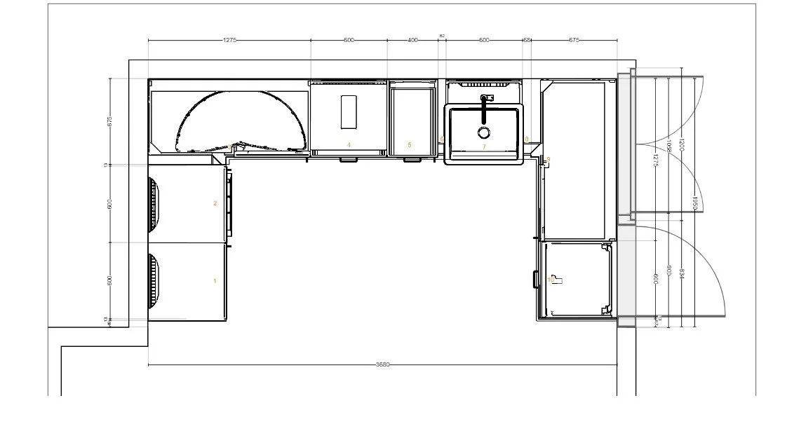
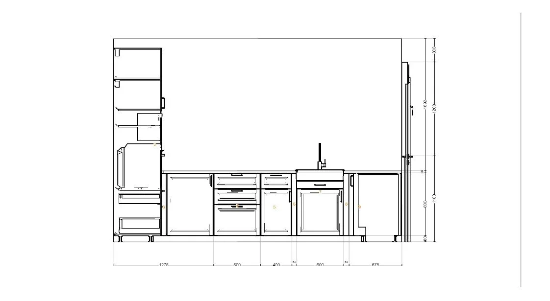
After.